Ver fondo
Ver Web
bg1

 

Asociación española de amigos de los Castillos, Castillos de España, Castillos medievales
ASOCIACIÓN ESPAÑOLA DE AMIGOS DE LOS CASTILLOS

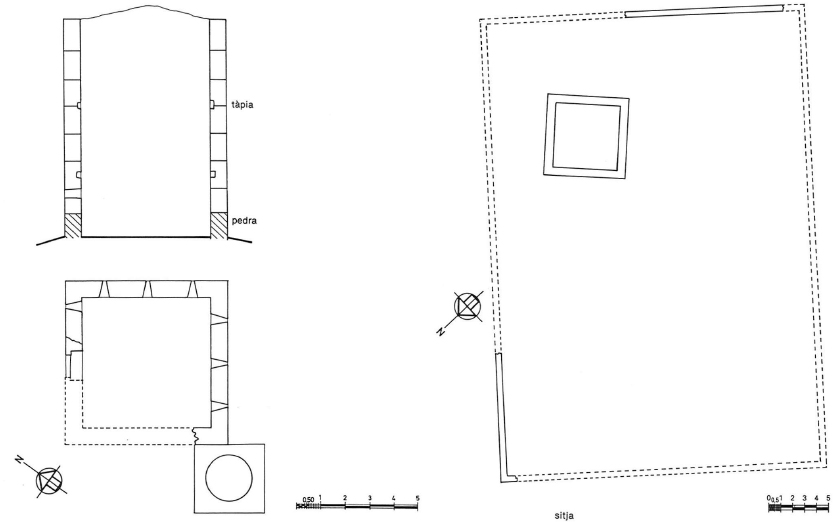
CALAFELL. Torre de Viola

En un principio esta torre se había clasificado como columbario romano, estudios posteriores hicieron pensar que era medieval (una teoría apuntaba a un origen islámico y otra, a un origen feudal más tardío), pero unos sondeos arqueológicos realizados en 1998, pusieron de manifiesto que era una construcción del siglo XVII . La torre seguramente se construyó en el contexto de la Guerra de los Segadores que afectó al pueblo entre 1640 y 1652. Debe tratarse de un fuerte fusilero.

Datos castillo
Nombre:
Torre de Viola
Municipio:
Calafell
Provincia:
Tarragona
Comarca:
Bajo Panadés
Latitud:
41° 12′ 0″ N
Longitud:
1° 34′ 48″ E
Altitud:
39 metros
Emplazamiento concreto:
Borde de meseta sobre valle
Tipología:
Tipología:
Torre
Sistema constructivo:
Tapial
Elementos estructurales:
Planta:
Rectangular
Elementos arquitectónicos:
Torre cuadrada y resto del recinto rectangular.
Estado de conservación:
Estado:
Ruina Progresiva
Observaciones de conservación:
Recinto que conserva elementos importantes.
Datos históricos:

En un principio esta torre se había clasificado como columbario romano, estudios posteriores hicieron pensar que era medieval (una teoría apuntaba a un origen islámico y otra, a un origen feudal más tardío), pero unos sondeos arqueológicos realizados en 1998, pusieron de manifiesto que era una construcción del siglo XVII . La torre seguramente se construyó en el contexto de la Guerra de los Segadores que afectó al pueblo entre 1640 y 1652. Debe tratarse de un fuerte fusilero.

Bibliografía:
VVAA, Catàleg de monuments i conjunts histórico-artistics de Catalunya, Barcelona, 1990, p.381.
Català i Roca, Pere, dir, Els castells catalans III, Barcelona, 1971, p.835-865.
VVAA, Catalunya romànica XIX, Barcelona, 1992, p.239-240.
Aloguín i Pallach, Ramón, Guía de fortificaciones de Tarragona, Tarragona, 1998, p.56.
Fecha última modificación:
21-V-2025
Datos de las imágenes:
Imagen 1Autor: Jaume Rivas
Archivo / Depósito: Wikiloc
Observaciones: https://es.wikiloc.com/rutas-senderismo/calafell-cova-foradada-lescarnosa-torre-den-viola-calafell-151398037
Imagen 2Autor: J. Bolós
Archivo / Depósito: Enciclopedia Cat
Observaciones: https://www.enciclopedia.cat/catalunya-romanica/torre-den-viola-calafell

Km.de tu ruta